Das Neugut – eine vorbildliche Restaurierung

Quelle: Jahrbuch der Stadt Wädenswil 1994 von Christian Renfer / Ingrid Stöckler

Im Jahrbuch der Stadt Wädenswil 1986 haben wir eingehend über die interessante Geschichte des ehemaligen Aussiedlungshofes Neugut auf dem Geländesporn gegenüber der Ruine Alt-Wädenswil berichtet. Unterdessen ist das herrschaftliche Wohnhaus aus der Biedermeierzeit durch die neuen Besitzer Ruth und Fritz Ostertag fachgerecht und mit persönlicher Liebe zum Detail restauriert worden – Grund genug, auch dies den Wädenswilern mit einem bebilderten Bericht zur Kenntnis zu bringen.
Im Jahre 1969 veräusserte die Familie Faesi das Neugut mit allem Zugehör der Stadt Wädenswil. Die mit den Verkäufern verwandte Familie Fueter erhielt dabei ein verbrieftes Wohnrecht und konnte so im Neugut, das sie seit langem bewohnte, bleiben. Als Frau Elsy Fueter 1987 starb, war der Zeitpunkt gekommen, wo sich die Stadt Wädenswil, welche bis dahin kaum in den herrschaftlichen Sitz investiert hatte, über die Zukunft ihrer Liegenschaft ins klare kommen musste. Bereits bestand ein politischer Grundsatzentscheid, dass mehrere «unrentable» Gemeindeliegenschaften veräussert werden sollten, um das Finanzvermögen der Stadt zu entlasten. Das Neugut stand deshalb zum Verkauf an. Dank dem Einsatz des damals für denkmalpflegerische Belange in der Gemeinde zuständigen Präsidenten der kommunalen Natur- und Heimatschutzkommission, Peter Ziegler, wurde die Liegenschaft im Neugut mit der Auflage ausgeschrieben, dass das stattliche Haus– ein Schutzobjekt von regionaler Bedeutung – nach denkmalpflegerischen Gesichtspunkten umgebaut und renoviert werden müsse. Ausserdem wurde bei der kantonalen Denkmalpflege ein detaillierter Schutzbeschrieb angefordert, welcher integraler Bestandteil einer künftigen Baubewilligung werden sollte. Doch die Käufer des Neuguts, welche 1988 das Wohnhaus mit dem benachbarten Ökonomie und Trottgebäude erwerben konnten, waren von ihrer neuen Liegenschaft derart angetan, dass für sie ohnehin nur eine Instandstellung nach denkmalpflegerischen Gesicht punkten in Frage kam. Beim Architektenehepaar Ruth und Fritz Ostertag waren überdies nicht nur die planerischen Voraussetzungen für ein sorgfältiges Projekt, sondern auch die verständnisvolle Bereitschaft, das nötige Engagement und ein guter und geschulter Geschmack für die bauliche Umsetzung vorhanden. Eine eingehende Auseinandersetzung mit den formulierten Schutzzielen, welche insgesamt auf eine vollumfängliche Erhaltung der wertvollen Substanz – ein integrales Bauwerk von 1814 – hinauslief und monatelange fachliche Diskussionen mit den Beratern der kommunalen (P. Ziegler) und kantonalen Denkmalpflege (P. Baumgartner und C. Renfer) Iiessen schliesslich für jedes technische Detail optimale Lösungen finden. Zunächst aber war ein angemessenes und doch wirtschaftliches Nutzungskonzept zu erarbeiten.
9a Das Neugut von Süden, nach der Restaurierung des Haupt- und Nebengebäudes. Im Vordergrund links die der Stadt Wädenswil gehörende, schützenswerte, aber zerfallende Scheune.
 
9b Ansicht von der Bergseite. Das Hauptgebäude von 1814 in wieder erstandener barocker Pracht.

Da das Neugut in der Landwirtschaftszone liegt und daher Bundesrecht zur Anwendung kam, konnte die Liegenschaft nur um ungefähr einen zusätzlichen Drittel zu Wohnzwecken ausgebaut werden. Das neue Nutzungskonzept, welchem das kantonale Amt für Raumplanung schliesslich zustimmte, sah die Trennung der beiden Hauptgeschosse des Wohnhauses und ihren Umbau zu selbständigen Wohnungen vor. Das Dachgeschoss sollte nur soweit zu einer eigenständigen Wohnung umgestaltet werden, wie es bereits durch Kammern genutzt war. Der restliche erste und der ganze zweite und dritte Dachboden blieben so unausgebaut. Dafür wurde den neuen Eigentümern ein zusätzlicher Ausbau im Ökonomiegebäude zugestanden. Hier war bisher bloss die Wohnung auf der Talseite genutzt worden. Nun wurde auch der bergseitige Teil, der ursprüngliche Pferdestall, die Remise und die Werkstatt, zu einer Wohnung umgebaut. Ebenso wurde (sozusagen als Nutzungstransfer für den unausgebauten Teil des Wohnhauses) ein Teil des Dachraumes den neuen Wohnungen zugeschlagen. Diese Neuorganisation des Ökonomiegebäude war mit einigen baulichen Änderungen verbunden, die vor allem der denkmalpflegerischen Zielsetzung entgegen kamen: Abbruch späterer Anbauten auf der Rückseite, Ersatz des störenden Dachausbaus auf der Vorderseite durch formschöne Lukarnen in Blech und flexible Nutzung des im Mittelbereich liegenden Trottraumes, welcher der Familie neuerdings für Konzertveranstaltungen dient (Neugut-Konzerte). Im Wohnhaus selbst wurde der Umbau mit höchster denkmalpflegerischer Sorgfalt und bemerkenswertem persönlichem Einsatz des planenden Besitzerehepaares vorgenommen. Mit der Neuorganisation der Wohnungen mussten Auflagen der Feuerpolizei (Wohnungsabtrennungen) erfüllt werden. Alle historischen Teile des Hauses, das heisst die ganze wertvolle Inneneinrichtung aus der Bauzeit (1814) wurden fachgerecht instandgestellt, die alten Fenster und Vorfenster blieben bestehen bzw. wurden aufgearbeitet und die vorgefundenen Dekorationsmalereien in der Eingangshalle wurden teilweise freigelegt und der Rest als Neufassung rekonstruiert. Am Äussern blieben zwar der weiche Gelbton des Verputzes und die weissen, vergipsten Dachuntersichten bestehen, für die Fenstergewände indessen wählte man eine freigelegte frühere Fassung, welche kontrastvoller wirkt als das abgewitterte helle Grau des bisherigen Anstrichs.
So ist heute das Neugut, dank der Sorge, die ihm die neuen Besitzer beim Umbau haben angedeihen lassen, wieder der strahlende Wohnsitz der Biedermeierzeit und legt so beredtes Zeugnis seiner herrschaftlichen Vergangenheit ab. Seit dem vergangenen Jahr ist der grosse Gebäudekomplex wieder mit Leben erfüllt, und ein sattes Grün umgibt die herausgeputzten Gebäude. Fünf Wohnungen, drei im Wohnhaus und zwei in der Ökonomie, sind hier entstanden und eigentumsmässig aufgeteilt.
Angesichts der intakten Einheit der restaurierten Gebäude sorgt man sich jedoch unwillkürlich um die Zukunft der im Besitz der Stadt verbliebenen Scheune. Es ist nur zu hoffen, dass auch sie – einst Vorzeigestück einer modernen Landwirtschaft und eines stolzen Besitzers – besseren Zeiten entgegendämmert. Bis dahin fällt wohl Brett um Brett aus der Wand. Wie heisst es doch im kantonalen Planungs- und Baugesetz von 1976: «Schutzobjekte sind zu erhalten …» (sog. «Selbstbindung des Gemeinwesens», § 204).

11a Trotz Umnutzung hat das Ökonomiegebäude seinen Charakter weitgehend bewahrt. Giebelfassade zur Neugutstrasse.

11b Ansicht gegen den Hof.

RENOVATION DES NEUGUTS 1991–1993

Das Wohnhaus
 
Aussenrenovation
Im Jahre 1991 wurde mit den Renovationsarbeiten begonnen, wobei die aufwendigste denkmalpflegerische Betreuung beim Hauptgebäude lag. Da die letzten Besitzer die Unterhaltspflichten für das Neugut weitgehend vernachlässigt hatten, war der allgemeine Zustand der Gebäude schlecht.
Das Äussere des Wohnhauses hat im Laufe der Zeit kaum bauliche Veränderungen erfahren. Es konnte deshalb in seinem bisherigen Erscheinungsbild instandgestellt werden. Flickarbeiten am Verputz und an den Sandsteinpartien gingen dem Neuanstrich voraus. Die Farbgebung richtete sich nach dem Befund, der die gelbe Fassadenfarbe im wesentlichen bestätigte, für die Fenstergewände jedoch einen dunkleren Ton ergab, der dann auch wiederhergestellt wurde. Die verwendete Zweikomponenten-Mineralfarbe (ein heute nur noch selten verwendeter Anstrich) verhilft der Putzoberfläche zu einer lebhafteren Farbe und gewährleistet eine natürliche Alterung (ähnlich der ursprünglich verwendeten Kalktünche). Da auf einen vollständigen Ausbau des enorm voluminösen Dachraumes verzichtet worden ist, konnten die Feinheiten des mit alten Biberschwanzziegeln gedeckten Mansarddaches erhalten werden. Anders als bei einem isolierten Dach, sind die Dimensionen der stark in Erscheinung tretenden Dachränder (Ort- und Traufgesimse) trotz eines neuen Unterdachs schlank geblieben. Ein denkmalpflegerisches Detail, das für die Erscheinung des Altbaus wesentlich ist.

12 Restaurierte Wein- und Mostfässer im Keller des Hauptgebäudes.

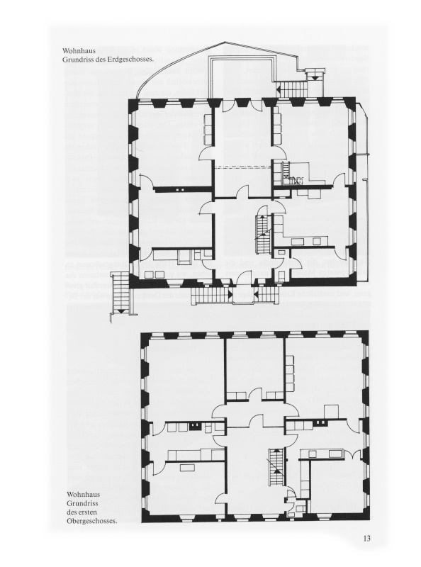
13a Wohnhaus: Grundriss des Erdgeschosses.

13b Wohnhaus: Grundriss des ersten Obergeschosses.

Der wohlhabende Bauherr von 1814 hat auch der Umgebungsgestaltung besonderes Augenmerk geschenkt. Eine mit Sandsteinen eingefasste Terrassenpflästerung, schmucke Eisengeländer, ein Pflanzgarten nahe beim Haus und ein herrschaftlicher Rosengarten mit Umfassungsmauer, Gartentor und (ursprünglich) zwei Wellingtonien an der südlichen Hangkante verschönerten die Liegenschaft. Alle diese Elemente sind sachkundig instandgestellt und restauriert worden und tragen heute wesentlich zum historischen Erscheinungsbild des Neuguts bei.

15a Originale Fenster und Vorfenster mit feingliedriger Sprossenteilung und kunstvollen Beschlägen.

15b Beide Stuben im Erdgeschoss des Hauptgebäudes verfügen noch über die originalen Parkettböden.


Renovation des Kellergeschosses
Bis auf die später erfolgten Einbauten boten die Kellerräume ein erfreuliches Bild, da die originale Substanz weitgehend unbeschädigt war. So mussten der Tonplattenboden, die Bretterdecke und die kalkverputzten Mauern nur ausgebessert werden. Ersetzt wurde der Treppenaufgang, und zusätzliche Kellerverschläge unterteilen heute den Raum. Die sekundären Einbauten wurden entfernt und die morschen Teile der Hängehurde erneuert. Eine zusätzliche Attraktion bieten die riesigen, zum Teil barocken Wein- beziehungweise Mostfässer, die auf einem Fasslager ruhen. Diese stammen wohl aus der nahegelegenen Eichmühle (vgl. dazu Jahrbuch der Stadt Wädenswil 1986: «Das Neugut in Wädenswil: Die Geschichte eines Aussiedlungshofes des 19. Jahrhunderts» von Christian Renfer). Von den ursprünglich 13 Fässern wurde ein Teil restauriert und im Neugut belassen.
 
Renovation des Erd- und des ersten Obergeschosses
Bei der Voruntersuchung des Hauses stellte man fest, das mit Ausnahme einer eingestellten Wand in der Eingangshalle keine Grundrissveränderungen stattgefunden hatten. Die Wohnräume waren mehrheitlich mit Wand- und Deckentäfer verkleidet, die zum Teil noch aus der Bauzeit stammen und meistens mehrfach übereinanderliegende Ölfarbanstriche aufwiesen. Die Wände der nicht vertäferten Räume zeigten einen Kalkverputz mit heller Tünche. In den beiden Stuben im Erdgeschoss sind die originalen Parkettböden noch vorhanden. Die Nussbaumtüren mit Messingbeschlägen sowie zwei Einbaumöbel, ein Sekretär und ein mehrreihiger Schrank, ebenfalls aus Nussbaumholz, stammen noch aus der Bauzeit. In den übrigen Räumen finden sich meist originale Tannenholztüren samt Beschlägen, die wiederum mehrere Farbanstriche aufwiesen. Bescheidene Malereien waren nur in der Halle des 1. Obergeschosses zu sehen, wo einfache Dekorationslinien die Decke in zwei Felder unterteilen. Zur grossen Freude der Denkmalpflege war der Bestand der Originalfenster und -vorfenster ziemlich vollständig.
 
Innenrenovation
Es folgt nun ein zusammenfassender Überblick über die denkmalpflegerischen Massnahmen im lnnern. Sämtliche Böden, bis auf diejenigen in den Nasszellen, blieben erhalten. Die vorhandenen Parkettböden wurden abgeschliffen und gewachst. Auf die Versiegelung verzichtete man, damit Abnützungserscheinungen weniger stark auffallen. Der unebene Tonplattenboden in der Küche wurde zum Schutz mit einer Sandschicht zugeschüttet und ein neuer im gleichen Material darüber verlegt. Ebenfalls schonend restauriert wurden die Edelholztüren und -gewände. Ihre Messingbeschläge erhielten nach der Reinigung keinen Lackanstrich, damit die Oberfläche natürlich oxidieren kann. Bei den Tannenholztüren konnten die Besitzer einen Farbton nach den Befunden auswählen, und die Beschläge wurden schwarz gefasst. Die maserierten Türen mussten nur stellenweise ausgebessert werden. Praktisch sämtliche Fenster, einschliesslich der Beschläge, wurden belassen und restauriert. Dies geschah auch mit den Vorfenstern, wobei der grösste Teil ersetzt werden musste. Für die Erhaltung der Fenster und Vorfenster mussten die Denkmalpfleger vorerst Überzeugungsarbeit leisten. Die Besitzer hatten vor allem Bedenken wegen der Undichtigkeit der Vorfenster und der umständlichen Bedienung beim Ein- und Aushängen. Um so erfreulicher ist schliesslich der Gesinnungswandel, der es ermöglichte, das Wagnis der Erhaltung einzugehen. Heute werden die Fenster als wichtiger Teil der historischen Substanz und als entscheidende Elemente des architektonischen Ausdrucks wieder geschätzt. Sie sind ein schönes Zeugnis der ungewöhnlichen Sensibilität, mit der hier vorgegangen worden ist.


16a Eingangshalle mit originalem Tonplattenboden und erneuerten Decken- und Wandmalereien.

16b Korridor im ersten Obergeschoss mit neuem, feuersicherem Wohnungabschluss.


17a Stube Nord im Erdgeschoss, mit Einbaubüffet.


17b Stube Süd im Erdgeschoss, mit Kachelofen.

18a Im alten Raum im Erdgeschoss wurde ein modernes Badezimmer eingebaut.


18b Küche im Erdgeschoss. Zum alten Herd ist eine moderne Küchenkombination getreten.

19a-e Nussbaum- und Tannenholztüren mit verschiedenen Beschlägen.

Dekorationsmalereien
Um 1870 wurden die Eingangshalle, der Treppenaufgang und die obere Halle mit einfachen Dekorationsmalereien geschmückt. Später wurden diese jedoch mehrfach übermalt. Eine etwas jüngere Malerei schmückte die vordere Halle im Erdgeschoss. Auch sie wurde bald wieder überdeckt. Durch die Sondierungen konnten die Dekorationen an Wänden und Decke in ihrem gesamten Umfange erfasst werden. An wichtigen Stellen wurden sie freigelegt und restauratorisch konserviert. Der Rest blieb unter den späteren Übermalungen. Für die Wiederherstellung des ursprünglichen Raumeindrucks rekonstruierte man schliesslich die restlichen Dekorationsmalereien auf der bestehenden letzten Malschicht. Die Originale blieben so darunter erhalten. Die restauratorische Wiederherstellung besorgte Restaurator Heinz Schwarz, Kriens.

21a Detail der aus der Zeit um 1870 stammenden Dekorationsmalereien an der Decke …

21b … der Eingangshalle des Wohnhauses.

21c Das gleiche Eckfeld nach der Freilegung …

21d … und nach der restauratorischen Konservierung bzw. Rekonstruktion.

Feuerpolizeiliche Massnahmen
Da aus dem ehemaligen ungeteilten Einfamilienhaus mehrere getrennte Wohneinheiten gemacht wurden, welche nur durch die ursprüngliche Treppenhalle zugänglich sind, mussten feuerpolizeiliche Massnahmen getroffen werden. Nach intensiven Verhandlungen mit der kantonalen Gebäudeversicherung wurden diese auf ein erträgliches, durch den Schutzcharakter bestimmtes Mass reduziert: Metall/Glas-Abschluss in der oberen Halle und Brandabschluss zur Dachwohnung. Auf die Gipsverkleidungen der markanten hölzernen Kellerdecke konnte schliesslich verzichtet werden. Bei Schutzobjekten von überkommunaler Bedeutung werden die Vorschriften in der Regel nach dem konkreten Fall durch die Gebäudeversicherung und die Denkmalpflege gemeinsam überprüft. Für die von der Denkmalpflege beantragten Ausnahmen zum Schutze der historischen Bausubstanz entscheidet dann die kantonale Feuerpolizei.
 
Ökonomiegebäude
 
Aussenrenovation
Das äussere Erscheinungsbild ist nicht mehr das ursprüngliche. Auf der Rückseite zeugen drei Quergiebel von späteren Ausbauten, welche die Rückseite verunklären. Im Zuge der Renovation wurde einer dieser Ausbauten teilweise abgetragen und die verschachtelte Rückfassade dadurch etwas beruhigt. Die Farbgebung des Aussenputzes, des Riegelwerks und der Fensterläden wurde wie beim Wohnhaus nach Befund vorgenommen. Dabei erstaunt vor allem die gelbe Farbe des Fachwerks. Das Nebengebäude wurde mit naturroten modernen Ziegeln eingedeckt, was zunächst befremden mag. Sie entsprechen jedoch, wie das ungestrichene Blech der Mansarddachlukarnen, dem heutigen Denkmalpflegeverständnis, wonach (ausser in speziellen Fällen) keine künstlich gealterten Materialien verwendet werden sollen, damit Eingriffe und Erneuerungen ablesbar bleiben, sofern sie nicht störend in Erscheinung treten.

Innenrenovation
Das Ökonomiegebäude hat im Verlauf der Jahre mehrere Eingriffe und Veränderungen erlitten. Deshalb konnte hier mit der Substanz freier umgegangen werden. Die Umbauten sind entsprechend grosszügiger ausgefallen, doch konnten gleichzeitig auch einige Verbesserungen erreicht werden. Beispielsweie ist die ursprüngliche Dachform wieder klar erkennbar. Zudem ergaben sich Wohnraumerweiterungen im Erdgeschoss und im Dachraum. Strenger verhielt sich die Denkmalpflege beim Trottraum, wo sich eine mechanische Obstpresse (System Sucher) befindet, welche als Zeugnis des ehemaligen landwirtschaftlichen Musterhofes gilt. Für diesen Raum, der kaum richtig isoliert werden kann, wurde schliesslich eine angemessene Nutzung gefunden. Er dient einerseits als Erschliessungs- und Durchgangsraum, anderseits als kleiner Versammlungsraum für Feste und Konzerte. Der Sandsteinboden, die ungeheizte Balkendecke und einige bemerkenswerte Details der ursprünglichen Nutzung (zum Beispiel der ehemalige Einfüll- und Abwurfschacht für die als Dünger genutzte Asche) verleihen dem Raum zusammen mit der restaurierten Presse eine besondere Note. Ein weiteres technisches Zeugnis aus dem 19. Jahrhundert ist die Wasserturbine, mit welcher verschiedene Maschinen (so die Obstmühle und -presse) angetrieben wurden. Sie ist, wenn auch nicht sichtbar und ausser Funktion, konserviert worden.
Auf diese Weise hat das Ökonomiegebäude, trotz Umnutzung, einen historischen Charakter weitgehend bewahrt.

22 Mechanische Obstpresse (System Bucher) im ehemaligen Trottraum des Ökonomiegebäude – Zeugnis des früheren landwirtschaftlichen Musterhofes.




Dr. Christian Renfer





Ingrid Stöckler


Bildnachweis

9-22 Denkmalpflege des Kantons Zürich, Zürich
Die Bilder sind urheberrechtlich geschützt und dürfen nicht ohne Genehmigung der Rechteinhaber verwendet werden.