Das Neugut in Wädenswil: Die Geschichte eines Aussiedlungshofes des 19. Jahrhunderts

Quelle: Jahrbuch der Stadt Wädenswil 1986 von Christian Renfer

AUSSIEDLUNG UND HOFKOLONISATION

Im Südosten von Wädenswil, dort wo die Strasse nach Einsiedeln im Tälchen des Reidbaches hart am Burgrain den Wald verlässt, liegt hoch über dem rechten Strassenbord die Eichmühle mit ihren Nebengebäuden und etwas südlich davon auf dem ostwärts gerichteten Hangsporn an der Grenze zu Richterswil das Neugut, ein mächtiges biedermeierliches Herrschaftshaus mit hohem Mansardgiebel, begleitet von einem kleineren Nebengebäude mit gleicher Dachform und einer etwas abseits stehenden, grossen Gutsscheune. Während die Gebäude der Eichmühle durchaus traditionelle Züge aufweisen und in der Hoflandschaft über dem Dorfe kaum nennenswert auffallen, verweilt das Auge sogleich fragend auf der weithin sichtbaren Hofgruppe des Neugutes.

65 Der Hof Eichmühle von Osten, um 1938.

Welchem Umstand verdankt wohl diese Gebäudegruppe mit dem französisch anmutenden Mansardendach auf Haupt- und Nebenhaus seine Entstehung? Früher waren die beiden im Garten stehenden fremdländischen Wellingtonien, welche die Trauffront des Wohnhauses zeichenhaft flankierten (vor einigen Jahren musste die eine gefällt werden), ein weiteres auffallendes Merkmal dieser im 19. Jahrhundert gestalteten Anlage.
Das Neugut verkörpert in seiner Entstehungsgeschichte in der Tat Wesenszüge, welche wichtige wirtschaftliche und demographische Entwicklungstendenzen im Übergang vom 18. zum 19., aber auch vom 19. zum 20. Jahrhundert aufzeigen. Das Neugut ist ein typischer Aussiedlungs- oder Filialhof des frühen 19. Jahrhunderts, der durch die Abspaltung von einem älteren Hofkomplex entstand. Diese Entwicklung ist für die Zeitenwende vom 18. zum 19. Jahrhundert charakteristisch. Die Aufhebung des althergebrachten Bodenzins- und Zehntabgabensystems durch den Staat (der sog. Zehntloskauf) hat in den ersten Jahrzehnten des 19. Jahrhunderts eine rasch anwachsende Siedlungserweiterung an den Ausfallsstrassen der bis dahin weitgehend geschlossenen Dörfer gefördert. Gleichzeitig ermöglichte sie die Bildung von Aussiedlungshöfen auf freiem Felde. Neuhof und Neugut sind Bezeichnungen, die auf solche neu geschaffene Landwirtschaftsbetriebe des frühen 19. Jahrhunderts hinweisen (Neugut in Wädenswil 1816, Neugut in Wallisellen 1837). Die Abspaltung des Filialhofes von einem grossen bestehenden Altgehöft und seine eigenständige Entwicklung kann in der Gründung des Neuguts in Wädenswil auf dem Boden des Eichmühlehofes in besitzesmässiger, betriebstechnischer und baulicher Hinsicht sehr schön aufgezeigt werden. Die Einzelhoflandschaft des Wädenswilerbergs hatte eine ähnliche Kolonisationsform bereits im 16. Jahrhundert erlebt, als in der Folge einer allgemeinen Lockerung des lehensrechtlich begründeten Hofteilungsverbotes durch die Obrigkeit die mittelalterlichen Grosshöfe zerfielen und eine Welle von Hofgründungen die Verdichtung des Siedlungsnetzes auch in den abgelegeneren Teilen des Bergs mit sich brachte.

DER ALTHOF «EICHMÜHLE»

Das alte Gehöft um die Eichmühle ist der südlichste der im Mittelalter auf der Hangterrasse über dem Dorf Wädenswil entstandenen Rodungshöfe1. Der gegenüber dem Altschloss (der heutigen Burgruine) auf einer Hangkante liegende Gutskomplex, aus welchem im 19. Jahrhundert der Aussiedlungshof des Neugutes hervorgegangen ist, hatte im Mittelalter die Bezeichnung Hof zu Lutringen. Er war, wie der benachbarte Hof «Unter Eichen» (Zollingerhäuser) im 13. Jahrhundert Eigengut der Herren von Wädenswil und gelangte 1281 durch Vermächtnis zunächst an das Kloster Frauenthal, 1302 durch Verkauf an das Johanniterhaus Bubikon und nach der Errichtung der Komturei Wädenswil um 1320/30 schliesslich an diese. Als Zürich 1550 die Herrschaft Wädenswil erwarb, wurde das nunmehr mit einer Mühle versehene Lutringengut, wie der nahe Hof «Unter Eichen», Erblehen unter der Oberhoheit des zürcherischen Staates. Die Bezeichnung Lutringen verlor sich in der Mitte des 16. Jahrhunderts. Dafür bürgerte sich der Name «Mühle unter den Eichen» oder kürzer «Eichmühle» ein2. Als der Müller Hans Diezinger 1568 auf diese Liegenschaft einen neuen Erblehenbrief ausgestellt erhielt, bestand der grosse Mühlekomplex aus drei Mahlwerken samt Stampfe, Bleue und Säge mit zugehörigen Wasserrechten sowie ausgedehntem, arrondiertem Acker-, Wies- und Weideland und etwas Wald3. Die östliche Liegenschaftsgrenze gegen den Burgrain hin bildete der Reidbach, der in der auffälligen Talsenke unterhalb der Eichmühle verläuft.
Hundert Jahre nach der Übertragung an Hans Diezinger musste die Eichmühle von dessen Nachfahren veräussert werden4. In der Hochkonjunktur des Dreissigjährigen Krieges (1618–1648) scheinen sie sich, wie viele Müller ihrer Zeit, übernommen zu haben. Aus der Beschreibung der Konkursmasse, die der Hofbauer Jakob Blattmann ab dem «Esel» am Richterswilerberg im Jahre 1677 übernahm, geht hervor, wie die Liegenschaft in den vorangegangenen hundert Jahren erhebliche Verbesserungen erfahren hatte5. Jakob Blattmann, Vater einer zehnköpfigen Familie, zog gleich nach dem Kauf nach der Eichmühle und verkaufte sein Gut auf dem «Esel»6. Kurze Zeit später begann er die Eichmühle in grossem Umfange baulich instandzustellen. Anstelle der alten errichtete er eine neue, grössere Gutsscheune.

Da er dafür zuviel Holz aus den Schlosswaldungen bezog, geriet er mit der Herrschaftsverwaltung in einen langwierigen Rechtshandel, in dessen Folge die Obrigkeit im Jahre 1692 die alten Holznutzungsrechte der Eichmühle in den Herrschaftswäldern drastisch einschränkte und sich damit der aus altem Lehensrecht erwachsenen Pflicht, den Erblehenhof mit genügend Bauholz zu versorgen, weitgehend entzog. Die Besitzer der Eichmühle kämpften danach noch während Generationen, bis um die Mitte des 18. Jahrhunderts, um diese Rechte. Da die Blattmann in der Herrschaft Wädenswil in hohem Ansehen standen, erhielten sie auch später noch hin und wieder etwas Bauholz zu ihrer Mühle, doch mit dem obrigkeitlichen Spruch von 1718 erlosch die rechtliche Verpflichtung des Staates ganz. Hans Jakob Blattmann, der erste Eichmüller, wurde 1685 zum Landrichter ernannt. Das Amt selbst übte er von 1686 bis 1692 wegen des Streites zwischen den Gemeindefraktionen Berg und Dorf um die Besetzung der höchsten politischen Ämter in der Gemeinde zwar nur de iure aus, doch blieb ihm während dieser Zeit immerhin die Würde eines Landrichters unangetastet. 1702 starb er. Sein Sohn Hans Heinrich Blattmann trat nach des Vaters Tod nicht nur die Leitung der Eichmühle an, in welcher auch die jüngeren Brüder dienten, er wurde auch sogleich Nachfolger seines Vaters im Landrichteramt und bekleidete in der Landmiliz den Offiziersrang eines «Capitann-Leutenampt über ein Compagnie zu fuss», nachdem er schon seit einem Jahrzehnt Fähnrich gewesen war. Seine Ehe mit Anna Wild blieb kinderlos. Hans Heinrich und Anna Blattmann-Wild starben kurz nacheinander im Jahre 1716.

67 Herrschaftsrecht für Landrichter Hans-Heinrich Blattmann, 1704.

68 Schlußstein von 1749 mit Wappen und Initialen des Eichmüllers Hans Kaspar Blattmann. Einst an einem Nebengebäude der Eichmühle (vor der Scheune im erstes Bild), heute an der Südseite des Wohnhauses zum Grünenberg in Wädenswil eingemauert.

Die beiden Brüder des Verstorbenen, Hans Kaspar und Hans Jakob Blattmann, bewirtschafteten in der Folge die Eichmühle während eines Jahrzehnts gemeinsam, bis sie 1729 den äusseren Meierhof im Boller erwerben konnten, den dann Hans Jakob übernahm. Von 1732 an tritt uns Hans Kaspar als alleiniger Eichmüller entgegen. Auch er bekleidete Ehrenämter in der Gemeinde, war Geschworener, dann 1722 Weibel. In der Miliz bekleidete er zudem den Rang eines Leutnants. Materiell scheint es der Familie damals, wie in den Generationen zuvor und danach, gut gegangen zu sein. 1745 kaufte Hans Kaspar Blattmann auf der Gant auch noch die Giessenmühle, auf die ein Jahr später sein ältester Sohn Hans Kaspar übersiedelte. Bereits 1742 war der zweite Sohn, Hans Heinrich, auf den Hof seiner Frau bei der Kirche gezogen. Die beiden jüngsten Söhne, Hans Jakob und Hans Heinrich, blieben weiterhin beim Vater auf der Eichmühle. 1747 starb dort die Mutter. Kurz darauf verehelichte sich Hans Jakob mit Elisabeth Wymann von Richterswil. Der alternde Vater trat bei mehreren Liegenschaftskäufen und bei der Bestätigung der Allmendrechte zu Richterswil im Jahre 1751 weiterhin als alleiniger Inhaber der Eichmühle auf. Erst nach seinem Tode 1759 gelangten die beiden Söhne in den Besitz des vom Vater vergrösserten und arrondierten Eichmühlehofes. Ein Jahr zuvor hatte sich der jüngere der beiden Brüder, Hans Konrad, mit Elisabeth Hüni aus Horgen verheiratet. Kurz darauf trennten sich die Wege der beiden. Während Hans Jakob die Eichmühle übernahm, erhielt Hans Konrad 1760 einen Gutsteil in der Nähe der Zehntentrotte vom alten Hof abgetrennt und wirtschaftete für kurze Zeit als Bauer auf eigenem Boden. Doch bereits ein Jahr später starb er an der Ruhr. Der Eichmüller Hans Jakob Blattmann, seines Zeichens Landrichter und Leutnant, tätigte in der Folge noch zwei Gutskäufe, mit der Absicht, den heranwachsenden Söhnen eine ausreichende wirtschaftliche Existenz zu sichern. 1774 erwarb er zunächst das Heimwesen auf dem «Esel», das schon seine Vorfahren besessen hatten. Hier mochte die Absicht zugrunde gelegen haben, durch spätere Zukäufe aus dem kleinen Gütlein allmählich einen guten Viehwirtschaftshof zu schaffen. Doch als sich zwei Jahre später die günstige Gelegenheit zum Kauf der Spreuermühle in der Pfarrei Hirzel bot, wurde das Gut auf dem «Esel» wieder abgestossen. Der älteste Sohn, Hans Jakob, bezog dann 1776 die Spreuermühle, zunächst im Namen der Familie, später übernahm er sie zu Eigentum, während sein nächst jüngerer Bruder Hans Heinrich Bauer auf dem Bühl wurde und die drei jüngsten – Johannes, Hans Kaspar und Heinrich – auf dem väterlichen Besitz in der Eichmühle blieben. Damit sind wir bei jener Generation angelangt, in der vom alten Eichmühlehof als Aussiedlungshof das «Neugut» abgetrennt wurde.

69 Plan des Hofes Eichmühle von 1842 mit Mühle, Öltrotte, Säge und anderen Nebengebäuden und projektierter Vergrösserung des Weihers in der Eichmatte.

DIE ENTSTEHUNG DES AUSSIEDLUNGSHOFES «NEUGUT»

Wir wissen nichts über die näheren familiären Umstände und Gründe, welche nach 1814 zur Entstehung eines Aussiedlungshofes auf dem Areal des alten Eichmühlegutes geführt haben. Auf jeden Fall haben eine Reihe von Erbausscheidungen nach dem Tode des Eichmüllers und Landrichters Hans Jakob Blattmann im Jahre 1796 den Weg dazu geebnet7. In einem ersten Schritt wurden 1797 die vier Töchter Elisabetha, Anna Barbara, Margareth und Elisabeth ausgesteuert. Noch im selben Jahr schlossen die drei auf der Eichmühle verbleibenden Söhne Johannes, Hans Kaspar und Heinrich Blattmann mit ihren beiden auswärtigen Brüdern, dem Spreuermüller Hans Jakob und dem Bühlbauern Hans Heinrich, einen abschliessenden Auskaufsvertrag, in welchem die Eichmühle den dreien zu Eigentum überschrieben wurde.

70 Eichmühle und Neugut auf der Wildkarte, um 1850.

Siebzehn Jahre später war offenbar eine weitere Eigentumsregelung unter den drei Eichmüllern fällig geworden8. Der ledige Johannes liess sich im Jahre 1814 mit 8000 Gulden für seinen Besitzesanteil an der Eichmühle abfinden. 500 Gulden erhielt er zusätzlich für den ideellen Anteil an Fahrhabe und Hausrat. Da er weiterhin im väterlichen Hause zu bleiben gedachte, überliess er den Brüdern diese letztere Summe zinsfrei bis zum Zeitpunkt, da er ausziehen würde. Hans Kaspar und Heinrich gelangten damit in das alleinige Eigentum des Hofes und der Mühle, die damals wie folgt beschrieben wurden:

1 Haus samt Mühle, umfassend 4 Mahlhaufen, 1 Relle, 1 Stampfe, 1 Haberdarre, 1 Werchreibe, 1 Ölmühle, 1 Sägehaus mit wassergetriebenem Sägewerk, sodann Schopf und Schweinestall, Scheune mit Bestallungen, Waschhaus, Speicher, Trotte mit Trottwerk, 2 Gärten, Hanfland, Matten und Weide mit darin stehender äusserer Scheune, alles in einem geschlossenen Areal. Dazu kamen die Weide ob dem alten Schloss in der Grösse von 6 Jucharten und zwei Stücke Riedland.
Bereits in diesem Zeitpunkt wo die beiden Brüder den alten Mühlehof noch in gemeinsamem Besitz hatten, müssen sich in den Wohnverhältnissen auf der Eichmühle entscheidende Änderungen ergeben haben9. Vermutlich hatten die beiden Familien einfach nicht mehr genügend Platz. So kam es, dass einige hundert Meter südöstlich der Eichmühle ein grosses, herrschaftliches Wohnhaus errichtet wurde, das Heinrich Blattmann mit seiner Familie bezog, während Hans Kaspar mit der seinigen im alten Mühlewohnhaus blieb und auch der ledige Bruder dort Wohnrecht genoss. Ob für diesen der alte Speicher bei der Eichmühle umgebaut worden ist, der 1828 in der Hofteilung als neu eingerichtete Wohnung erscheint, ist nicht erwiesen. Ebenso lässt sich eine Überlieferung, die am herrschaftlichen Haus haftet, welches in den Teuerungsjahren 1816/17 entstand, nicht aktenmässig überprüfen.

71a Eichmühle und Neugut, Plan von 1878.

71b Hof Neugut von Südosten, 1979. Rechts die Eichmühle.

72 Wohnhaus Neugut, Ansicht von Südwesten.

Es heisst, die reichen Eichmüller hätten damals das ungewohnt grosszügige Haus errichten lassen, um so der notleidenden Bevölkerung zu helfen. Man kann die Vorzeichen auch umkehren: dann hätten die geschäftstüchtigen Unternehmer dank ihres Kapitaleinsatzes von der damaligen allgemeinen Not profitiert und dank niedriger Löhne ihr grossartiges Bauunternehmen verwirklichen können. Während den folgenden zehn Jahren blieb der Eichmühlehof trotz des Wohnungsneubaus auf freiem Feld noch beisammen. Wir müssen annehmen, dass Hans Kaspar und Heinrich Blattmann den Betrieb gemeinsam bewirtschafteten, wobei dem älteren wohl vor allem das Mühlegewerbe unterstand, während der jüngere den Bauernhof führte. So kam es, dass sich nach dem Tode Heinrichs im Jahre 1827 dessen beide Söhne Heinrich und Hans Kaspar mit ihrem Onkel, dem Eichmüller Hans Kaspar, einigten, den Hof auf gütliche Weise aufzuteilen10. Damit war im Jahre 1828 die Geburtsstunde des Neugutes gekommen. Aus dem alten Eichmühlehof wurde das Mühlegewerbe mit Wohnhaus, Scheune, einem zur Wohnung umgebauten Speicher, einer weiteren Scheune mit Trotthaus, einer Säge, einer Öle und drei Mühlebauten mit je einem Mahlhaufen, einem Waschhaus und einem unlängst zuvor unterhalb der Eichmühle am Hang errichteten Spinnereigebäude, zusammen mit 16½ Jucharten Matten, Ackerland und Ried, ausgeschieden und Hans Kaspar zugeteilt. Dieses Gut trug weiterhin die Bezeichnung Eichmühle und ging später an den Sohn Jakob Blattmann (1819–1892) über, der sich gleichzeitig als Müller und Baumwollspinner betätigte.
Der andere ausgeschiedene Gutsteil, der Heinrich und Hans Kaspar, den Söhnen des verstorbenen Heinrich Blattmann, zufiel, umfasste im wesentlichen ein geschlossenes Areal von ungefähr 30 Jucharten an Acker- und Wiesland mit dem neu erbauten Doppelhaus und einer etwas entfernt davon stehenden Scheune, welche zunächst als Hofscheune diente, bis 1832 die grosse, heute noch bestehende Scheune unmittelbar südlich des Wohnhauses errichtet wurde11. Diese dreissig Jucharten bildeten von da an ohne wesentliche Flächenänderung bis 1938 das «Neugut»12. Noch vor dem Neubau der Scheune wurde 1829 auf der Nordseite des Wohnhauses in paralleler Stellung dazu ein kleineres Nebengebäude gebaut, das bereits 1835 eine Erweiterung erfuhr und Knechtekammern, Kellerräume, eine Werkstatt und im rückwärtigen Teil ein Trotthaus enthielt13.

DER WERDEGANG ZUM LANDWIRTSCHAFTLICHEN MUSTERHOF

Im Jahre 1858 kaufte Heinrich Blattmann seinen Bruder Hans Kaspar aus, mit welchem er das Neugut seit 1828 gemeinsam bewirtschaftet hatte14. Hans Kaspar wurde für seinen Erbteil an Liegenschaften und Fahrhaben mit 12 000 Gulden (bzw. 28 000 Franken) entschädigt. Heinrich wirkte danach elf Jahre lang als Neugutbauer. Nach seinem Tode im Jahre 1869 trat sein 34-jähriger Sohn gleichen Namens die Nachfolge an. Unter ihm bahnten sich wesentliche Änderungen in der Bewirtschaftung des Landwirtschaftsgutes an, durch die das Neugut im folgenden Jahrzehnt in den Ruf eines Musterhofes gelangte. Dieser erhielt schliesslich seine fachliche Würdigung in der «Schweizerischen Landwirtschafthlichen Zeitschrift» durch einen Aufsatz in der Reihe «Schweizerische Musterwirthschaften» im Jahre 1874, die den Titel «Eine moderne Graswirthschaft am Zürichsee» trug und vom Landwirtschaftslehrer O. Brunner vom Strickhof verfasst war15. In der Einleitung dazu schreibt der Fachlehrer: «Auf diesem Wege (das heisst der Publikation) geben wir uns der Hoffnung hin, einestheils dem Leser Beispiele bieten zu können, aus deren Beschreibung ihm das Eine oder Andere für seine Verhältnisse als dienlich und zur Nachahmung passende erscheinen dürfte, anderseits aber auch, um wirklich tüchtigen und aller Anerkennung würdigen Wirthschaften die ihnen gebührende allgemeinere Aufmerksamkeit zuzuwenden16

73 Neugut. Nebengebäude von 1829 auf der Nordseite des Wohnhauses.

74 Wohnhaus Neugut von Südwesten. Im Hintergrund links die Ruinen der Burg Alt-Wädenswil.

In seiner Zeit scheint Heinrich Blattmann zu diesen nachahmenswerten tüchtigen Bauern modernster Ausrichtung gehört zu haben, und der Autor des Fachaufsatzes sieht in der Herkunft des Neugutbauern aus einer unternehmerischen Müllersfamilie sowie seiner persönlichen Ausbildung in diesem Fach die geistigen Voraussetzungen für eine fortschrittliche Einstellung zur Landwirtschaft.
Worin äusserte sich nun der Fortschritt im Neugut? Ausgehend von der in der voralpinen Zone über dem Zürichsee üblichen gemischtwirtschaftlichen Betriebsweise mit Schwergewicht auf extensiver Weidewirtschaft, wie sie seit dem 17. Jahrhundert am Wädenswilerberg heimisch war, schufen die Blattmann in der ersten Hälfte des 19. Jahrhunderts innert zweier Generationen einen Betrieb, der zwar aufgrund des örtlichen niederschlagsreichen Klimas nach wie vor auf der Graswirtschaft fusste, der aber durch konsequente Wechselwirtschaft, verbunden mit einer gezielten Düngung, vielfältigere und gesteigerte Erträge ermöglichte. Bestanden die landwirtschaftlichen Kulturen des Neugutes vor 1817 aus 2/3 Wiese, 2/9 Weide und 1/9 Ackerland, wobei der Futterertrag für 6 bis 7 Stück Grossvieh ausreichte17, so ging man zwischen 1828 und 1832 zur Wechselwirtschaft über. Der Ackerbau erfuhr eine wesentliche Ausdehnung und umfasste jetzt 1/3 der Gesamtfläche. In einer mehrteiligen Fruchtfolge wurden auf 7 Jucharten hintereinander Kartoffeln, Weizen, Klee und Korn (Dinkel) und gleichzeitig auf 3 Jucharten Frühkartoffeln, Raps oder Möhren und Sommergerste angepflanzt18. Der Viehbestand schwankte zwischen 10 und 12 Kühen. Gleichzeitig wurde dem Obstbau vermehrte Beachtung geschenkt, und die Zahl der Nutzbäume erhöhte sich bis 1836 auf zirka 300. Da man auf dem Neugut bereits seit den 1830er Jahren über die Erträge Buch führte, verwundert es kaum, dass laufend Anpassungen in der Bewirtschaftung vorgenommen wurden.
Ein Ochse und zwei Pferde bildeten das Zuggespann. Aus dem Obstbau flossen als Hauptertrag ungefähr 150 Hektoliter Most im Jahr, die weitgehend in den Verkauf gelangten. Ein kleiner Teil der Früchte wurde als Tafel- und Dörrobst verwertet und zum Teil ebenfalls verkauft.
Eine derart einseitige Graswirtschaft, wie sie auf dem Neugut seit den 1860er Jahren betrieben wurde, war nur durch eine intensive Düngung möglich. Zu diesem Zwecke wurden grosse Jauchegruben angelegt, und der vergrösserte Viehbestand lieferte den nötigen Mist. Jahrzahlen an verschiedenen Gebäuden des Neugutes bestätigen, dass die Modernisierung des Hofes nicht ohne Anpassungen und Erneuerungen an den Bauten verwirklicht werden konnte. Die Scheune wurde 1870 um eine Achse bergwärts erweitert und mit einer Hocheinfahrt auf der nördlichen Giebelseite versehen, die das Einbringen des Heus wesentlich erleichterte und in der Fachzeitschrift von 1874 als zeitgemässe technische Verbesserung gewürdigt wurde20. Auch die Anlage der Querstallungen scheint damals modernsten Anforderungen entsprochen zu haben. Dasselbe gilt für die Einrichtung des Nebengebäudes auf der Nordseite des Hauses. Ein durch Pferdekraft in Schwung gesetztes Antriebswerk (Göpel) lieferte über Transmissionen die Kraft zum Betrieb verschiedener Maschinen, so für die Obstmühle im Pressraum, den Futterschneidestuhl (Häckselmaschine), den Schleifstein, die Holzfräse und die Schrotmühle.

75 Das Neugut im heutigen Katasterplan.

76a Giebelfassade gegen Nordosten.



76b Traufseite gegen Nordwesten.



76c Traufseite gegen Südosten.



76d Grundriss des Wohngeschosses.



77a Querschnitt.



77b Längsschnitt mit Ansicht der Sparrenlage.

Nach 1874 wurde der gesamte Antrieb auf Wasserkraft umgestellt21. Damit hielt man im Neugut Schritt mit der durch die allgemeinen technischen Errungenschaften ermöglichten und in der zweiten Jahrhunderthälfte rasch voranschreitenden Mechanisierung. Und was uns heute als Selbstverständlichkeit erscheint, die Tatsache nämlich, dass die Technisierung auch vor der Landwirtschaft nicht halt gemacht, sondern diese in ihrer ganzen Totalität erfasst hat, erschien dem Landwirtschaftslehrer Brunner im Jahre 1874 immerhin eines besonderen Hinweises würdig, wenn er schreibt: «Dass gerade hiefür (für die Verbesserungen in der Landwirtschaft) die Einrichtung von technischen Schulen, wie eine solche zur Zeit in Winterthur (heutiges Technikum) ins Leben gerufen wird, von weittragender Bedeutung zu werden verspricht, scheint ausser Frage. Überhaupt muss hiernach die Heranbildung tüchtiger Maurer- und Zimmerleute sowie von Baumeistern, sofern die landwirtschaftlichen Interessen nicht ausser Acht gelassen werden, für das speciell landwirtschaftliche Bauwesen von grosser Tragweite sein22

79a Dachstuhl in der oberen Schütti.

79b Fensterfront in der Stube.

79c Kachelofen in der Stube.

79d Schrankwand in der Stube.

79e Kellertüre, 1816.

79f Blick in den Mostkeller.


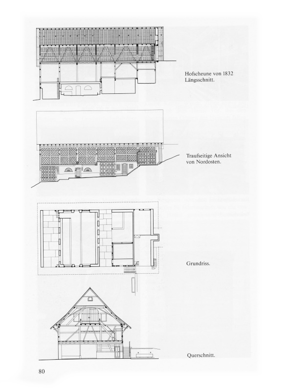
80a Hofscheune von 1832: Längsschnitt.


80b Traufseitige Ansicht von Nordosten.


80c Grundriss.


80d Querschnitt.

81 Hofscheune von 1832. Ansicht von Nordwesten.


Unter besten technischen Voraussetzungen und in günstigen Bewirtschaftungsverhältnissen konnte Heinrich Blattmann den Gutsbetrieb im Neugut bis wenige Jahre vor seinem Tode weiterführen. 1911 übertrug er ihn, mit Einwilligung seiner Tochter, Frau Babette Tobler-Blattmann im Mittelort Wädenswil, seinem Sohne Heinrich, wobei er sich die Verfügbarkeit über Haus und Hof bis zu seinem Tode vorbehielt23. Der Kaufpreis von 60 000 Franken wurde so berechnet, dass davon 15 000 Franken als Sohnsvorteil und 15 000 Franken als Ausgleich für die von der Tochter bereits vorbezogenen 10 000 Franken angerechnet wurden. Die restlichen 30 000 Franken waren der väterlichen Erbmasse zu belasten. Drei Jahre später starb Altgemeinderat Heinrich Blattmann, und bereits zehn Jahre später ging der Hof in die Hände des gleichnamigen Enkels über24. Das elterliche Ehepaar Heinrich und Elise Blattmann-Tanner behielt sich dabei ein Wohnrecht in der oberen Wohnung sowie ein Nutzungsrecht an Waschküche, Keller, Winde, Zinne sowie am Garten ob dem Hause vor. Bei den übertragenen Gütern des Neuguts fallen die Teilrechte am Sennereigenossenschaftsgut Unterschwanden in der Gemeinde Richterswil auf, wo sich eine Sennhütte (Käserei) befand. Hatten bereits die Eichmühlebesitzer im 17. Jahrhundert Anteil am Weidgang auf der Richterswiler Allmend25, so war nun das Neugut neuerdings an einer Sömmerungsgenossenschaft auf Richterswilerboden beteiligt.

In der Zeit der Loslösung des Neugutes von der Eichmühle zu Beginn des 19. Jahrhunderts war die von beiden Höfen gemeinsam betriebene Hofkäserei bei der Eichmühle das Zeichen für die auf Viehwirtschaft ausgerichtete Betriebsweise dieser bereits am Rande des voralpinen Regengürtels liegenden Bauerngüter26.

83 Hofscheune von 1832. Traufseite gegen Nordosten.

Mit dem Jahre 1938 ging die Zeit der bäuerlichen Besitzer im Neugut zu Ende. In diesem Jahre kaufte Prof. Dr. Robert Faesi die Liegenschaft27. 1969 veräusserten dessen Erben das gesamte Gut an die Stadt Wädenswil, doch behielt die Familie des Miterben Prof. Dr. Eduard Fueter, seinerzeit Dozent an der ETH, das Wohnrecht im Hause28.
In absehbarer Zeit werden sich im Neugut neuerdings Änderungen ergeben, da die Stadt das herrschaftliche Wohnhaus mit etwas Umschwung einem privaten Käufer veräussert hat.

Das landwirtschaftliche Areal des Neugutes bleibt indessen weiterhin im Besitze der Stadt Wädenswil. Es ist zu hoffen, dass der markant auf einem Hangsporn liegende ehemalige Aussiedlungshof als Zeuge einer wichtigen landwirtschaftlichen Epoche weiterhin vor Überbauung freigehalten wird, wie das das kantonale Bau- und Planungsgesetz nicht nur für wertvolle bauliche Zeugnisse, sondern auch für deren historisches Umfeld verlangt29.




Dr. Christian Renfer


Bildnachweis

65 Jean Baberell, Thalwil/Zürich
67 Denkmalpflege des Kantons Zürich
68 Jean Baberell, Thalwil/Zürich, Denkmalpflege des Kantons Zürich
69 Staatsarchiv des Kantons Zürich, Zürich
70 Denkmalpflege des Kantons Zürich
71a Staatsarchiv des Kantons Zürich, Zürich
71b Denkmalpflege des Kantons Zürich
72 Denkmalpflege des Kantons Zürich
73 Denkmalpflege des Kantons Zürich
74 Denkmalpflege des Kantons Zürich
75 Denkmalpflege des Kantons Zürich
76a-d Denkmalpflege des Kantons Zürich
77a, b Denkmalpflege des Kantons Zürich
79a-f Denkmalpflege des Kantons Zürich
80a-d Denkmalpflege des Kantons Zürich
81 Denkmalpflege des Kantons Zürich
83 Denkmalpflege des Kantons Zürich
Die Bilder sind urheberrechtlich geschützt und dürfen nicht ohne Genehmigung der Rechteinhaber verwendet werden.

Anmerkungen

StAZ: Staatsarchiv Zürich

1 Zur Frühgeschichte der Eichmühle vgl. Peter Ziegler, Wädenswil, Bd. 2, Wädenswil 1970, S. 63 ff.: Siedlungen und Höfe vor 1550 und Peter Ziegler, Vom Hof Unter Eichen und den Zollingerhäusern in: Jahrbuch der Stadt Wädenswil 1982, S. 21-39.
2 StAZ, C II 14 Wädenswil Nr. 144 und Nr. 145, beide vom 10.6.1568.
3 StAZ, C II 14 Wädenswil Nr. 144. Erblehenbrief für Müller Hans Diezinger vom 10.6.1568.
4 StAZ, B XI Wädenswil, Grundprotokoll Bd. 2, S. 266 b, Randnotiz von einer Hand des 19. Jahrhunderts zum Schuldbrief Hans Diezingers für seine fünf Schwestern vom 1. November 1676.
5 Diethelm Fretz, Die Blattmann, Bd. 1, Zürich 1934, Anhang XVII.
6 Das Wesentliche zur Geschichte der Eichmühle unter der Familie Blattmann ist folgendem Werk entnommen: Diethelm Fretz, Die Blattmann, Bd. 1, Zürich 1934 und Bd. 2, Zürich 1938 S. 15-54.
7 Die Auskäufe vom 7.6.1796 und 10.5.1797 sind erwähnt im Vorspann zum Auskauf vom 11.11.1814 (vgl. Anm. 8).
8 StAZ, B XI Wädenswil, Grundprotokoll Bd. 18, S. 334 ff. Auskaufsvertrag der Gebrüder Blattmann vom 11.11.1814.
9 Der Neubau des Wohnhauses im Neugut wird belegt durch die Jahrzahl 1816 am Kellerportal und den Eintrag im Brandassekuranzlagerbuch (StAZ, RR I 260 c, S. 103 7): 1816, 1 Wohnhaus, Gebrüder Blattmann.
10 Notariat Wädenswil, Grundprotokoll Wädenswil, Bd. 4, S. 647 ff. Teilung vom 1.9.1828, eingetragen am 26.5.1855.
11 Das Datum 1832 mit den Initialen HB (Heinrich Blattmann) an der Ostfassade der Scheune stimmt mit einer namhaften Erhöhung des Brandversicherungswertes von Fr. 800.– (Vorgängerbau) auf Fr. 2200.– im Jahre 1832 überein (StAZ, RR I 260 b, S. 465 Nr. 287 N).
12 Zum Vergleich: Landfläche des Neugutes im Jahre 1801 (StAZ, K I 237, Helvetischer Kataster fol. 31)
- 1 Haus, 6 Mühlegebäude, 2 Scheunen, I Waschhaus, 1 Sennhütte, I Nebenbau
- 3½ Jucharten Wiese
- 10½ Jucharten Wiese
- 1 Jucharte Garten und Ausgelände
- 1 Scheune
- 8 Jucharten Weide
- 4 Jucharten Weide
- 1 Jucharte Holzboden
- 1 Jucharte Ried
- 1 Jucharte Ried in Beichlen
- 1 Jucharte Ried im Mosli
Landfläche des Neugutes im Jahre 1921 (Notariat Wädenswil, Grundprotokoll Wädenswil, Bd. 40 S.)
7 Hektaren 30 Aren 55m2 Hofraum, Garten und Wiese
1 Hektare 53 Aren 73 m2 Wiese im Neugut 16 Aren 67 m2 Wiese im Neugut
46 Aren 9 m2 Streueland in der Beichlen = 9 Hektaren 47 Aren 04 m2 Gesamtfläche
13 Das Datum 1829 am Rundbogenportal stimmt mit dem Eintrag im Brandassekuranzregister (StAZ, RR I 260 c, pg. 1155, Nr. 287 P) überein;
1829: 1 Nebengebäude
1835: 1 Nebengebäude und Trotthaus ebenso das Datum 1875 am Kellerportal des Anbaus mit dem entsprechenden Eintrag: 1875: 1 Nebengebäude und Trotthaus und Anbau, dazu I Trottwerk, 1 Turbine.
14 Notariat Wädenswil, Grundprotokoll Wädenswil, Bd. 5, S. 403 ff., Auskauf vom 5.11.1858.
15 Schweizerische Landwirtschaftliche Zeitschrift, 2. Jahrgang (1874), S. 97-108 und 145-153.
16 ebenda S. 97.
17 ebenda S. 102.
18 ebenda S. 103.
19 ebenda S. 105-108.
20 ebenda S. 14 7 und Jahrzahl 1870 mit Initialen HB (Heinrich Blattmann) am Rundbogen des Einfahrtstores zur Scheune.
21 ebenda S. 151.
22 ebenda S. 146.
23 Notariat Wädenswil, Grundprotokoll Wädenswil, Bd. 33, S. 400 ff., Eigentumsübertragung vom 15.8.1911.
24 Notariat Wädenswil, Grundprotokoll Wädenswil, Bd. 40 S. 10 ff., Eigentumsübertragung vom 22.4.1921.
25 Diethelm Fretz, Die Blattmann, Bd. 2, S. 49, Tafel XXXVIII und Bd. 1, Tafeln IV und VII.
26 Notariat Wädenswil, Grundprotokoll Wädenswil, Bd. 4, S. 647 f: Hans Caspar Blattmann, Müller, 1 Waschhaus und ½ Sennhütte Heinrich Blattmanns Erben ½ Sennhütte hinter der Eichmülli.
27, 28 Notariat Wädenswil, Grundbuch Wädenswil, Einzelblätter 1601-1800, Blatt 1621: Prof. Dr. Robert Faesi, Kauf vom 4.2.1938. Politische Gemeinde Wädenswil, Kauf vom 31.10.1969.
29 Zürcherisches Planungs- und Baugesetz (PBG) vom 1. April 1976, § 203 und 238.